Skip to main content
Calendar
Employment
Contact Us
Search
Locations
Services
Projects
Government
News
Toggle Menu
City of
Boulder
Locations
Services
Projects
Government
News
Calendar
Employment
Contact Us
Search
Breadcrumb
Home
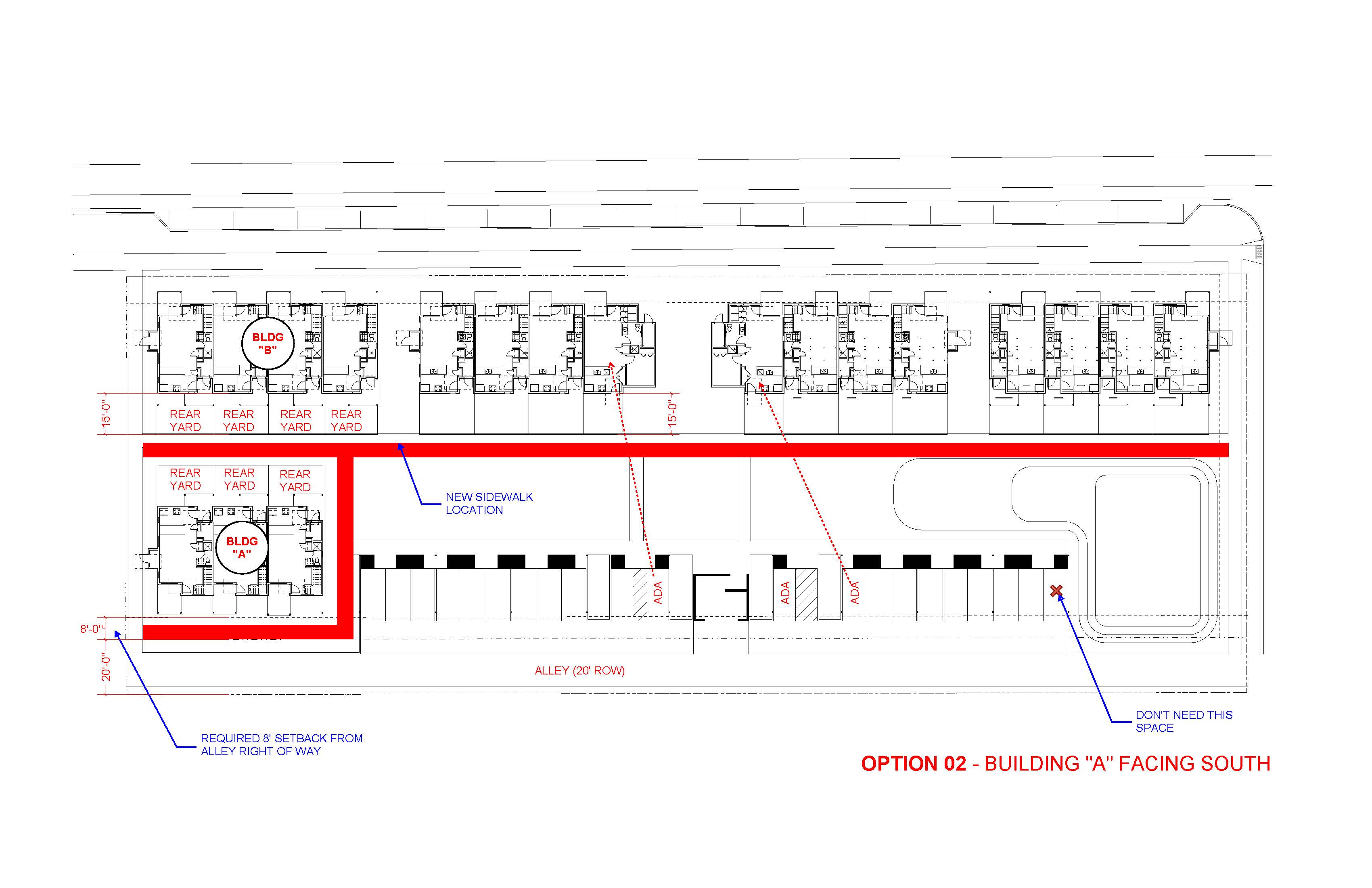
2180 Violet Full Project Lay-out.jpg